menu

Charmerende 1-sals lejlighed tæt på Skagens gågade

Velkommen til denne lyse og indbydende 1-sals lejlighed på 68 m², beliggende på en attraktiv adresse på Sct. Laurentii Vej i Skagen, kun et stenkast fra gågaden. Lejligheden er perfekt placeret i en ejendom bestående af 4 ejerlejligheder, herunder 2 beboelseslejligheder og 2 erhvervslokaler. Der er desuden en privat parkeringsplads tilknyttet, og lejligheden ligger på første sal med en smuk udsigt.

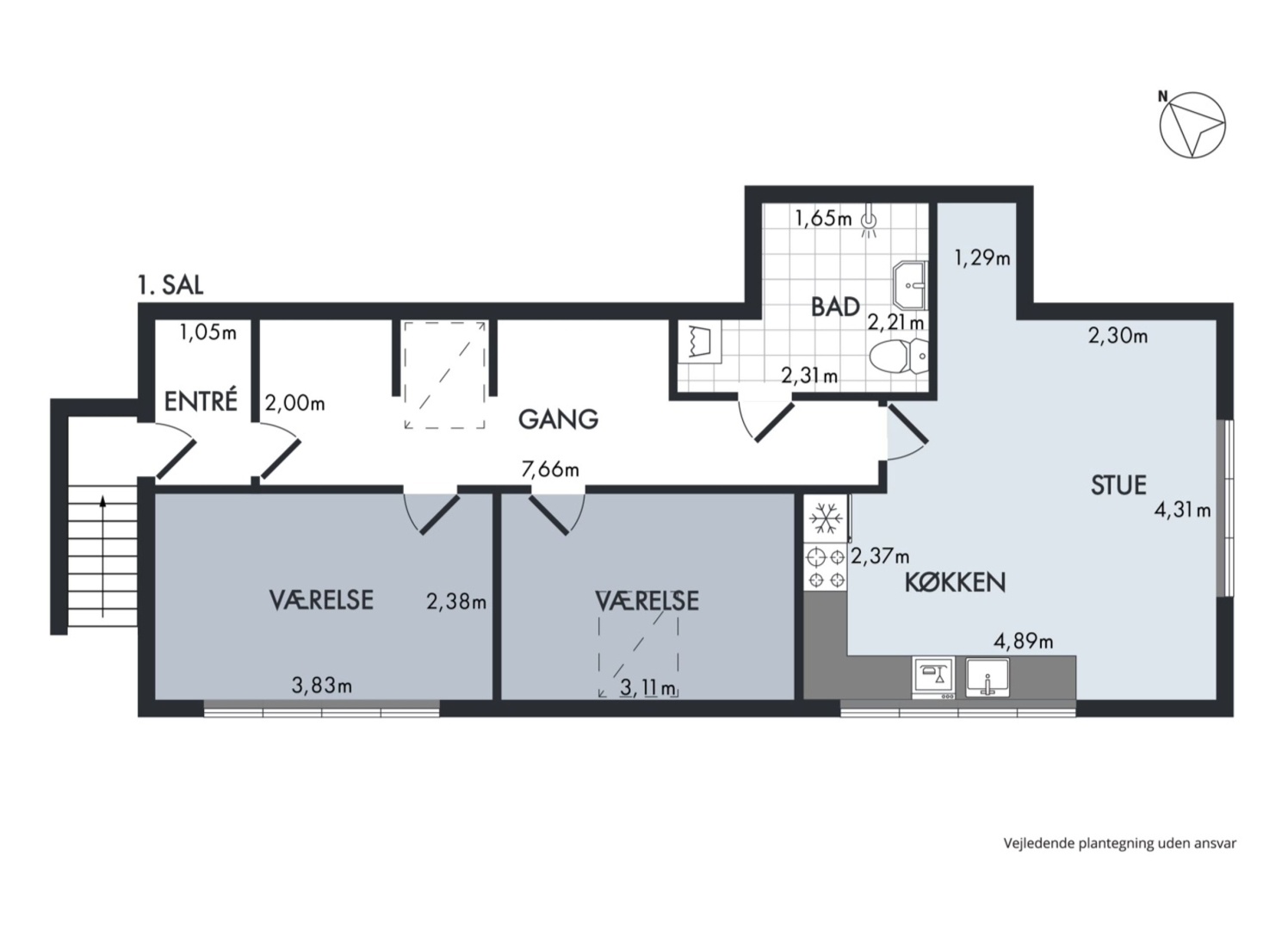
Indretning: Lejligheden byder på en rummelig entré med god plads og en bred gang med to alkover og trægulv. Badeværelset er funktionelt indrettet med bruseniche, toilet, vask og vaskemaskine, mens linoleum på gulv og væg i bruseniche sikrer et praktisk og letvedligeholdt rum.

Soveværelset har trægulv og Velux vindue, hvilket giver et dejligt lysindfald. Det ekstra værelse med kvist og trægulv kan anvendes til både kontor eller ekstra soveplads og giver et unikt kig til byens liv.

Køkken, stue og spiseplads er åbne og lyse med god plads til et spisebord til 4 personer, hvilket gør det til det perfekte samlingspunkt. Fra kvisten ud fra køkkenet får man et flot kig over byens tage, mens stuen med et gavlvindue giver et skønt udsyn ned til den livlige gågade.

Yderligere fordele:

·Loftrum over lejligheden med ekstra opbevaringsplads.
·Parkeringsplads tilknyttet ejendommen
·Lejligheden lejes for 90.000 kr. i årlig lejeindtægt af Novo Nordisk.
Denne lejlighed tilbyder en perfekt kombination af central beliggenhed, funktionel indretning og mulighed for en god indtægt. En ideel bolig for den, der ønsker at bo i Skagen med kort afstand til byens tilbud og samtidig nyde roen og komforten af et privat hjem.

Ronnie Calundan
Kontakt:
Ronnie Calundan

Sct. Laurentii Vej 78C, 1. sal, Skagen
Sag: 15612533

Boligareal m268
Etager1
Antal værelser2
Antal stuer1
Byggeår1930
Ombygget2001
Energiklasse

Boligen er set gange1895

Vis salgsopstilling
/

Vis salgsopstilling


Når du bestiller salgsmateriale, godkender du at vi gemmer de indtastede personoplysninger og at vi må kontakte dig telefonisk eller via e-mail vedrørende ejendommen. Du kan se vores persondatapolitik her!

Navn:

Telefon:

E-mail:

 Jeg ønsker salgsopstillingen sendt via post

 Ja, Ejendomsmæglerfirmaet Calundan må kontakte mig via telefon eller mail vedr. denne og lignende boliger

Book fremvisning

Book en fremvisning

Sct. Laurentii Vej 78C, 1. sal, Skagen - 15612533

Når du bestiller en fremvisning, godkender du at vi gemmer de indtastede personoplysninger og at vi må kontakte dig telefonisk eller via e-mail med henblik på fremvisning af ejendommen. Du kan se vores persondatapolitik her!

Dine oplysninger

Ønsket tidspunkt

Kontakt en af vores finansielle partnereFå en gratis salgsvurdering
boliger i samme prisniveau
Doggerbanke 39B
Skagen
Kontantpris1.745.000
Boligareal m2111
Højensvej 32H, 1., Gl. Skagen
Skagen
Kontantpris1.495.000
Boligareal m249
Vognmandssti 1
Skagen
Kontantpris1.575.000
Boligareal m277