Remisen en skøn bolig i ægte Skagen-stil midt i Skagen
Denne charmerende bolig, opført i 2007 i klassisk Skagen-stil, ligger ideelt placeret i hjertet af Skagen med nem adgang til byens mest ikoniske områder. På få minutter kan man gå til Østerby med Brøndums Hotel og Skagen Kunstmuseum, ligesom gågaden med sine hyggelige butikker og specialforretninger ligger lige i nærheden. Havnen med de atmosfærefyldte Fiskepakhuse og populære restauranter nås også let til fods, hvilket giver en helt unik mulighed for at nyde byens livlige stemning året rundt.
Huset er opført på en 224 m² stor grund og rummer 118 m² velindrettet bolig fordelt på to etager. I stueplan bydes man velkommen i en indbydende entré med sorte klinker og trappe til første sal, og under trappen findes et praktisk teknikrum. Badeværelset fremstår lækkert og moderne med gulvvarme, bruseniche, formstøbt vask, loftspots og en vaskesøjle. Stuen har smukke trægulve og dobbelte franske døre til spisestuen, som ligeledes byder på trægulv, brændeovn og udgang til terrassen via dobbeltdør. Herfra er der åben forbindelse til køkkenet, der har klinkegulv og egen udgang til haven.
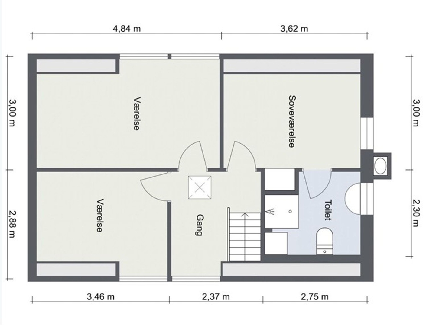
På første sal mødes man af et lyst repos med kvist og trægulv. Et godt værelse med kvist og indbygget skab følger, ligesom et ekstra stort værelse med både skab og kvist giver mange anvendelsesmuligheder. Soveværelset byder på god skabsplads, trægulv og direkte adgang til eget badeværelse med bruseniche og gulvvarme.
Alt i alt er Remisen en indflytningsklar og utrolig charmerende bolig, hvor man bor i gåafstand til stort set alt det, Skagen har at tilbyde kultur, gastronomi, strand, havnemiljø og byliv. En sjælden mulighed for at få en skøn bolig i et af byens mest attraktive områder.





















