Hyggeligt Kalmar-sommerhus med skøn vestvendt ugeneret terrasse
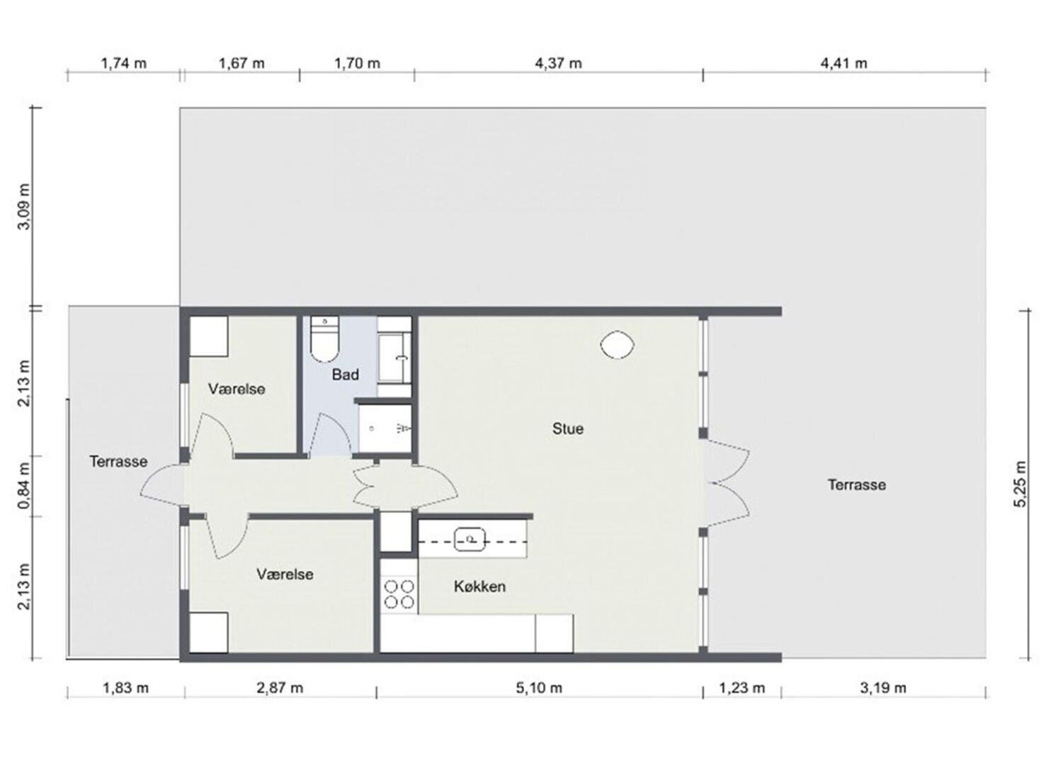
Dette charmerende bette Kalmarhus emmer af sommerhusstemning og er perfekt indrettet, så hver kvadratmeter udnyttes optimalt. Huset er opført i 1981 og fremstår med nyt listepaptag, nyt badeværelse og et stort, vestvendt vinduesparti, der giver en helt særlig varme og lys i sommerhuset. Herfra er der direkte udgang til den dejlige sydvestvendte gårdhave, hvor sommeraftenerne næsten forlænger sig selv.
Sommerhuset rummer 45 m² og ligger på en 1.448 m² stor naturgrund med lyng og spredt beplantning, som giver en skøn og privat atmosfære. Indenfor samler køkken, stue og spiseplads sig i en hyggelig hestesko, hvor brændeovnen og varmepumpen skaber komfort hele året. Køkkenet fremstår funktionelt og charmerende. Hele rummet har loft til kip med de karakteristiske Kalmarbrædder hvidmalede vægge og mørkere lofter, som giver huset en lun og rustik karakter, understøttet af et nyt Velux-vindue, der lukker ekstra lys ind.
Entréen byder på trægulv og adgang til et pænt og nyere badeværelse med bruseniche, flotte klinker og ovenlysvindue. Derudover finder du et hyggeligt køjeværelse med indbygget køjeseng samt et soveværelse, begge med trægulve og fin indretning.
Til ejendommen hører en carport fra 2000 med integreret udhus, og derudover et charmerende anneks på 10 m² fra 2021, indrettet med to sovepladser og perfekt til gæster.
Alt i alt et rigtigt bette, men utroligt velindrettet sommerhus i et skønt område et sted hvor roen sænker sig, hvor naturen står smukt omkring huset, og hvor man straks føler sig hjemme. En oplagt base til både afslapning, nærvær og gode ferieminder.

























