Eksklusivt nybygget Skagenshus med havkig tæt på Vippefyret og Sønderstrand
Velkommen til dette smukke og nyopførte Skagenshus, beliggende i rolige og charmerende Østerby kun få skridt fra det ikoniske Vippefyr og den populære Sønderstrand. Huset er opført i 2024/2025 og står helt klar til at byde dig velkommen til sommerferie og afslapning. Græsset skal blot sås, og møblerne skal på plads så er du klar til at nyde sommeren i fulde drag.
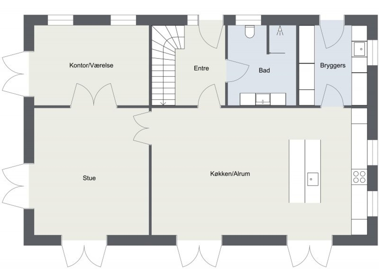
Med sine 181 m² fordelt på 119 m² i stueplan og 62 m² på førstesalen får du en moderne bolig med masser af lys, luft og veludnyttet plads. I stueetagen finder du en praktisk baggang med vask, bordplads og vaskesøjle samt en skabsvæg med teknik. Det store køkken og alrum er husets hjerte og byder på en elegant arbejdsø med vask og udgang til en sydvendt terrasse, der indbyder til hyggelige stunder. Herfra er der åben forbindelse til en lys stue med direkte udgang til terrassen samt adgang til et skønt kontor med dobbelt fransk dør og endnu en udgang. Fra hallen fører trappen op til førstesalen, og et lækkert badeværelse med bruseniche fuldender etagen.
På førstesalen mødes du af en hyggelig opholdsstue med sydvendt kvist og smukt udsyn til Vippefyret og et bid af Sønderstrand og Kattegat kan opleves. Herfra fordeler rummene sig til to charmerende værelser i gavlen mod øst og et stort soveværelse mod vest, hvorfra der er flot kig over Østerby og hen mod det gamle vandtårn. Et ekstra badeværelse med bruseniche og kvist mod nord sikrer komfort på alle niveauer.
Grunden er på 620 m² og byder på god plads til både leg og afslapning. En rummelig indkørsel og et udhus på ca. 20 m² i baghaven giver dig desuden både praktisk opbevaring og muligheder for hobby eller værksted. Med under 300 meter til Vippefyret og blot 350 meter til stranden, bor du midt i Skagens mest eftertragtede område, hvor både ro, natur og kultur er lige udenfor døren.
Dette er en sjælden mulighed for at erhverve et nyt og indflytningsklart kvalitetsbyggeri med ægte Skagen-stemning og havkig. Perfekt som sommerhus, helårsbolig eller eksklusiv feriebolig.































